VENDU à MONTPELLIER pour INVESTISSEUR : Appartement T2 avec parking et terrasse
VENDU MONTPELLIER QUARTIER EUROMEDECINE Pour investisseur
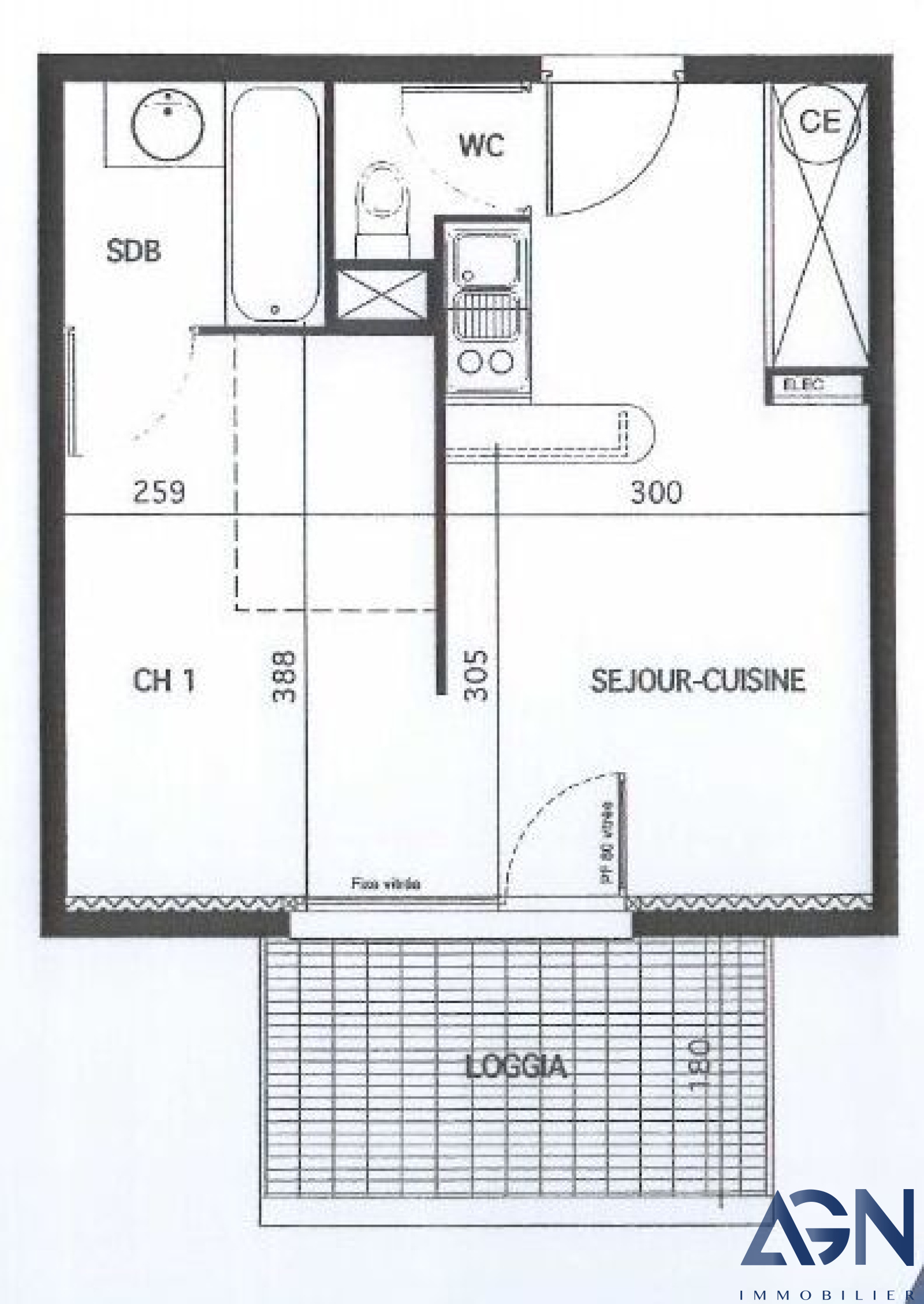
VENDU LOUE : Appartement de type 2 pièces de 30.90m² avec une terrasse de 6.30m² ainsi qu'une place de parking. Ce bien a été acheté avec un prêt PLS, l'appartement devra être louer jusqu'en juin 2024. Il se compose d'une entrée avec placard, un séjour cuisine de 16m², une chambre semi ouverte, une salle de bains et un WC indépendant.
L'appartement est en copropriété, dont les charges de copropriété sont de 1 155 €. Envie d'en savoir plus sur cet appartement à vendre ?
Prenez contact avec votre agence AGN Immobilier MONTPELLIER au 0467211645 ou contact@agn-immobilier.net https://www.agn-immobilier.net/
6.3,
Les informations recueillies sur ce formulaire sont enregistrées dans un fichier informatisé par La Boite Immo agissant comme Sous-traitant du traitement pour la gestion de la clientèle/prospects de l'Agence / du Réseau qui reste Responsable du Traitement de vos Données personnelles.
La base légale du traitement repose sur l’intérêt légitime de l'Agence / du Réseau.
Elles sont conservées jusqu'à demande de suppression et sont destinées à l'Agence / au Réseau.
Conformément à la loi « informatique et libertés », vous pouvez exercer votre droit d'accès aux données vous concernant et les faire rectifier en contactant l'Agence / le Réseau.
Si vous estimez, après avoir contacté l'Agence / le Réseau, que vos droits « Informatique et Libertés » ne sont pas respectés, vous pouvez adresser une réclamation à la CNIL.
Nous vous informons de l’existence de la liste d'opposition au démarchage téléphonique « Bloctel », sur laquelle vous pouvez vous inscrire ici : https://www.bloctel.gouv.fr
Dans le cadre de la protection des Données personnelles, nous vous invitons à ne pas inscrire de Données sensibles dans le champ de saisie libre
Ce site est protégé par reCAPTCHA, les Politiques de Confidentialité et les Conditions d'Utilisation de Google s'appliquent.
