Voir le bien
Montpellier
(34000)
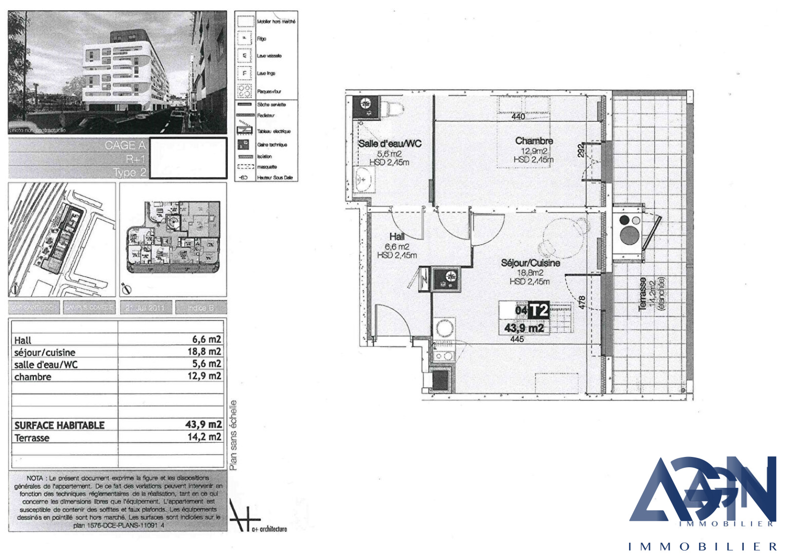
2 pièces - 43,24 m²
À VENDRE : APPARTEMENT 2 PIÈCES DE 43,24M² AVEC PARKING QUARTIER RIVES DU LEZ À MONTPELLIER
199 000 €
Ref : V30013786
Accord
Voir le bien
